中国传统菜肴对于烹调方法极为讲究,而且长期以来,由于物产和风俗的差异,各地的饮食习惯和品味爱好 , 的烹调技术经过历代人民的创造,形成了丰富多彩的地方菜系。
依次填入划横线部分最恰当的一项是:
泥石流的 依赖于三个危险因素:沉积物中的粘土、大量的水快速涌入以及山区的地势差异。发生泥石流时,地上的各种大小石头和泥,小到直径只有零点几微米的粘土,大到数十厘米乃至更大的巨型漂砾,都有可能 在泥石流中“泥沙俱下”。
依次填入划横线部分最恰当的一项是:
现代社会不少人喜欢名牌,把自己的精力消耗在追逐名牌这个事情上,而不是把精力放在 自己上面。你被外在的物质的东西所奴役,就要不停地去满足这个外在的东西。节俭的品德不是让你过苦日子,而是要把自己的心 ,不被外在的东西牵着鼻子走。
依次填入划横线部分最恰当的一项是:
近年来,“图说我们的价值观”公益广告以开阔的视野、 人心的作品和 人心的力量,传播社会正能量,引起了社会各界的高度关注和观众的热烈反响。
依次填入划横线部分最恰当的一项是:
科学的发展和进步往往____于科学假说,科学理论发展的历史就是假说的形成、发展和假说之间的竞争、更迭的历史。面对茫茫人类历史源头,面对_______、虚虚实实的人类文明历史遗存,科学假说同样至关重要。他_______地将历史、文化、人性、环境视角的“聚光灯”汇集在一起,形成了属于他的一盏“无影灯”,并以这样的视角照射幽暗的历史深处,从而解析出一些可能接近历史本源的朦胧真相。
依次填入划横线部分最恰当的一项是:
哲学社会科学作为人们认识世界、改造世界的重要 ,历来是推动历史发展和社会进步的重要力量。纵观人类历史,人类社会每一次重大跃进,人类文明每一次重大发展,都离不开哲学社会科学的知识 和思想先导。哲学社会科学的发展水平,反映了一个民族的思维能力、精神品格、文明素质,体现了一个国家的综合国力和国际竞争力。
依次填入划横线部分最恰当的一项是:
土豆放置在潮湿环境中容易发芽,土豆发芽后会产生一种毒素叫做龙葵碱,龙葵碱对胃肠道黏膜有较强的刺激性,会产生 效果,对中枢神经有麻痹作用,中毒的主要症状为胃痛加剧,恶心、呕吐、呼吸困难、急促,伴随全身虚弱 ,严重者可导致死亡。
依次填入划横线部分最恰当的一项是:
文字是人类继语言之后的第二大发明。如果说,语言的出现使人类实现了由动物到人的转变,那么文字的发明,则使人类从原始社会的低级阶段上升到文明社会的高级阶段,从而使人们的生活发生了质的飞跃。文字是一个民族与国家文化传承与创新的基础,因此, 。
填入划横线部分最恰当的一项是:
当下,“网红食品”让一些美食爱好者 。然而,朋友圈里的美食宣传往往真假莫辨。“网红食品”利用朋友圈熟人关系、口碑传播的社交特性推销产品,甚至 营销公众号为其背书。
依次填入划横线部分最恰当的一项是:
每一项工业遗产都 着城市社会发展的演变规律,实施对工业遗产的发掘保护,开发利用,对维护城市风貌, 生机特色,克服千城一面现象,具有重要意义。
依次填入划横线部分最恰当的一项是:
为什么一些商品的供求关系会落入尴尬境地?为什么人们对中国品牌信心不足? 可见,这种营商理念下的商业模式,迷失了产业优化升级的方向,破坏了我国经济的微观基础,造成了供求的不匹配。
①如果一种产品利润极低,则肯定无法投入资金进行创新和提升品牌形象
②这一营商理念的问题在哪里呢
③在过去很长一段时间里,我国企业实行的是低成本低利润扩张、追求市场份额最大化的做法
④我们知道,对于任何产品,只有存在合理利润,才有可能继续投入资金进行研发,促使产品更新换代,促使品牌深入人心
⑤这需要分析我国企业的营商理念与商业模式
⑥同时,极低利润基础上的低成本竞争极易导致假冒伪劣商品横行,这又进一步损害了品牌形象
将以上6个句子重新排列后插入横线中,语序正确的是:
万众创新,需要不拘一格的包容,让各种类型的人才脱颖而出;需要自由宽松的环境,让各种新奇的探索互相____;需要体制变革的____,让全社会每一个细胞的生命活力充分____。
依次填入划横线部分最恰当的一项是:
无论是现代游戏,还是传统游戏,都____出了一定的知识、社会和时代特征,同时也____了团结、多样性和包容的价值。但随着社会变迁和时代发展,很多有价值的传统游戏正在一代又一代的____中逐渐消逝。
依次填入划横线部分最恰当的一项是:
总的来讲,“社会”在处理与国家的关系过程中强调其自主性的成长与释放,并 了各种形式的自我保护运动。而且,“社会”也在改变其生存与发展策略,它不仅仅满足在国家为其 的范围内行动,而且还通过与国家的主动接触与互动, 与政府的相关性,并以协作或合作的方式参与社会问题的解决。
依次填入划横线部分最恰当的一项是:
细胞表面的磷脂酰丝氨酸是促进HIV与细胞融合的重要辅因子,是HIV入侵细胞过程中的“ ”目标,若这一目标不存在了,则会影响HIV的入侵。因此, 外源性磷脂酰丝氨酸,或抑制TMEM16F蛋白,就会抑制病毒蛋白的介导融合,从而阻止HIV对细胞的感染。
依次填入画横线部分最恰当的一项是:
近些年,作为文化政策、资本扶植发展的重心,国产动画被寄予了极大期望。然而,动漫的土壤并不是随便撒些空壳烂籽就可以 的。
填入划横线部分最恰当的一项是:
艺术人类学的田野调查,是将调查事项作为一个整体,从形式到内涵,由表及里, ,考查其艺术语境、渊源、内涵、象征、法则及其实际发挥的社会功能,同时更关注艺术事项的主体,并从中发现他们独特的艺术审美和文化价值。
填入划横线部分最恰当的一项是:
古代中国数秘术与古希腊数秘术的区别在于,前者侧重解象,后者侧重数术。中国的数秘术后来发展成了更具意义的宇宙形而上学,与算术渐行渐远, 。
填入划横线部分最恰当的一项是:
放弃语音套餐收入,才是流量经营全面成熟的开始。可喜的是,随着4G网络的普及,技术上VOLTE已经没有问题,商业上随着用户的 ,移动互联网产品的 ,流量经营正在迎来井喷的时代,语音通话方式也将成为流量经营的一部分。到那时,运营商将会有更充足的底气,敢于放手语音业务,彻底投入流量经营的怀抱。
依次填入划横线部分最恰当的一项是:
家风是具有鲜明特征的家庭文化,良好家风是一个家庭最宝贵的精神财富,也是每个家庭成员形成正确世界观、人生观、价值观的 。家庭是人生的第一所学校,良好家风是人生幸福生活的“第一组密码”。“积善之家,必有余庆;积不善之家,必有余殃。”只有守住和 好温暖的家庭,才能有人生的成功。
依次填入划横线部分最恰当的一项是:
研究人员在大肠杆菌外面缠裹了一种叫做
氨基酯的人工合成聚合物,形成一种“细菌胶囊”。随后,将其插入抵抗肺炎球菌的蛋白质疫苗。实验证明,这种胶囊能被动或主动地瞄准一种特殊免疫细胞,它能提升人体免疫反应,具有很强的抗肺炎球菌疾病的能力。研究人员指出,这种胶囊疫苗成本低,使用便利,用这种胶囊输送疫苗能引发特定免疫反应,比现有接种疫苗效率更高,效果更好。
根据这段文字,下列说法正确的是:
氨基酯人工合成聚合物全社会要形成抵制网络不良信息的“防火墙”。网络文化产品直接面向社会公众,经营者是否违法经营,受众最先知道、最有发言权。对网络文化产业进行监管要依靠群众、发动群众。应健全群众举报体系,构建严密的社会监督网络,使网络文化产业发展中的违法行为无藏身之地;引导和教育广大网民增强鉴别能力,面对形形色色的网络文化产品保持清醒头脑,不受骗上当,不误入歧途;帮助网民提高自身道德修养,从思想上打造铜墙铁壁,自觉抵制通过网络传播的不良信息。
这段文字意在强调:
虽然说经营性养老机构的定价是放开的,政府不能够干预,但是,从保障购买者权益、稳定养老床位价格、规范市场秩序等角度来说,有关方面需要高度警惕这种销售床位的经营模式带来的种种问题。比方说,床位可以炒卖,既有可能背离了养老机构床位的属性——把养老服务变成一种投资形式,还有可能把养老机构床位的价格哄抬高,造成老人们买不起也住不起。另外,床位售价被炒高后很有可能会出现闲置浪费。总之,如果不加以规范,有可能重蹈中国楼市的炒房覆辙。
这段文字意在强调:
近年,研究人员研发出了一种“人造皮肤”,能够模仿健康年轻皮肤的特点,有望成为人类的“第二层皮肤”,“人造皮肤”交叉融合了医学、生物、化学、材料、工程等多个学科,通过对材料的不断筛选、优化及临床测试,最终才取得这样的成果。现实中,类似的成果还有很多,比如通过心脏外科医生与电气工程学家及计算机科学家的紧密合作,利用3D打印将患者病变心脏的扫描成像转变成用于心脏手术的物理模型。历史上,任何一项医疗技术和医疗器械创新都并非是临床医生或某个学科专家单独完成的。基于临床问题的多学科交叉合作,才能真正实现医疗技术和医疗器械领域的自主创新。
这段文字意在强调:
方言,指各地用语。周秦之时,政府派遣“轩使者”(乘坐轻车的使者)到各地搜集地方用语,并加以记录整理。两千多年前,西汉扬雄著《轩使者绝代语释别国方言》,东汉应劭将此书名简称为《方言》,此后“方言”开始作为特定词语使用。与方言对应的是雅言,后称官话、国语。1956年后称普通话并予以推广。60年后,普通话推广已非常成功,而方言却面临着式微、需要保护的局面。
根据这段文字,下列说法正确的是:
水熊虫也叫水熊,是对缓步动物门生物的俗称,有记录的约有900余种,大多是世界性分布的。它们的体型极小,最小的只有50微米,最大的也只有1.4毫米,必须用显微镜才能看清。水熊虫是地球上已知生命力最强的生物,能在冷冻、水煮、风干的状态下存活,甚至能在真空中或者放射性射线下存活,而一旦将其放回到正常环境下,仍能恢复到正常状态。
这段文字旨在说明:
近年来,高空坠物事件屡有发生,受到社会广泛关注。不可否认,法律层面的规定,避免了高空坠物发生后出现索赔难的情形,确保了被侵权人的合法权益得到切实保护。然而,侵权责任法律的规定,明显具有滞后性,也就是说只有发生侵害行为后,法律才会介入。那么,当侵权行为发生后,伤害或死亡悲剧已经发生,根本无法实现亡羊补牢的效果。因此,如何强化法律的前置性功能,让法律成为高空坠物的安全防护网,是解决问题的关键所在。
下列说法与这段文字的主旨无关的是:
离开家乡转眼近二十载,立业,成家,每日忙忙碌碌,即使回去,也是行色匆匆,没有机会走街串巷品尝家乡的美食。一把雪里蕻引起我对家乡美食的馋涎,也勾起我许多的乡愁。我怀念家乡的味道,不仅仅是这些美味,还有空气中那夹杂的某种浅浅的腥土味以及混合着的一些青草花香的气息,更有那热情洋溢的七邻八舍的咋呼声。这些平常熟悉的味道,这些以前常被我忽略了的味道,在我离开家乡多年后却给我以某种完全不同的感受,家乡一切陌生的、熟悉的细节纷至沓来,那些微小的触觉因了怀念都一一被放大了起来,也变得弥足珍贵起来。
对这段文字概括最准确的关键词是:
20世纪30年代,图灵提出计算机能够思维的观点,主张凡是能够通过“图灵测试”的计算机就能够思维。所谓“图灵测试”,就是说一个人如果不能判断与之对话的隐藏主体是人还是机器,我们就不得不承认即便是机器也能思维。“图灵测试”能否判断机器的思维, 。如果将思维定义为计算过程,那么计算机当然能够思维。这就是著名的“计算机隐喻”,即人是计算机,思维就是计算——这是计算机表征主义的核心思想。
填入划横线部分最恰当的一项是:
这部著作把对历史文化追索的触角更深入地探触到历史时空的幽微之处,更敏锐地 虽然缥缈却血脉相连的文化传承,让远逝的鸿影显现出朦胧的真相,使冰冷荒漠的历史有了人性的 。他将华夏祖先的图腾放置在人类文明进步的历史大背景中予以 ,在历史与现实之间辗转反侧、抒发见解,带给我们新的思考。
依次填入划横线部分最恰当的一项是:
题目正在全力以赴征集,将会在征集到后第一时间上传
①这不仅表明了工业社会对于文化生产的接管、改造和重新规划,而且,技术的意义开始占据前所未有的份额
②电影的诞生是技术介入艺术的里程碑事件
③技术始终是文化生产的组成部分
④尽管如此,技术从未扮演艺术的主角
⑤庄子、杜甫、苏东坡,《窦娥冤》《红楼梦》,这些经典令人敬重的原因是深刻的思想和洞察力,而不是由于书写于竹筒,上演于舞台,或者印刷在书本里
⑥从青铜铸鼎、笔墨纸砚到瓦舍勾栏的兴盛、印刷时代的降临,艺术符号的制作及其传播从来没有离开技术的支持
将上述6个句子重新排列,语序正确的是:
①数据足迹通过互联网络和云技术实现对外开放和共享
②因此带来了我们以前从未遇到过的伦理与责任问题
③形成与物理足迹相对应的数据足迹
④大数据技术通过智能终端、物联网、云计算等技术手段来“量化世界”
⑤其中最突出的是数据权益、数据隐私和人性自由等三个重要问题
⑥从而将自然、社会、人类的一切状态、行为都记录并存储下来
将以上6个句子重新排列,语序正确的是
现在,死海的湖水正以每年超过1立方米的速度消失,而极为少见的巨大沙坑正以每年 的速度形成,而且这个速度还可能继续加快。尽管官方没有公布沙坑的破坏程度,但许多电源线、公路以及活动住宅正被 ,甚至曾有游客掉入沙坑受伤。
依次填入划横线部分最恰当的一项是:
当前我国城市建设面临经济发展与产业结构调整、环境保护、社会治理模式、民生保障等多方面矛盾,建设智慧城市是大势所趋。我国在智慧城市的很多应用方面已经走在了世界前列,像网约车、共享单车等。但也存在一些问题,如顶层设计不足、缺乏体系性规划与创新等。另外,智慧城市建设有许多方面没有考虑到与市民切身相关的问题,市民的感知度并不明显,如何把握城市建设和市民利益结合起来,注意群众需求,是推进智慧城市建设、解决智慧城市落地问题的关键。
这段文字意在强调:
从对技术与知识关系的梳理以及互联网技术自主性的趋向来看,未来新闻传播学科重构中应该注意一个核心问题:如何平衡人与技术的关系问题,使研究者从沉浸其中的技术系统中跳脱出来,以一种批判的眼光对待技术体系,避免成为因互联网自主性导致社会失序的推手。对此,唐•伊德指出,“正是因为太熟悉,我们不仅忽视了由技术系统进行批判性反思的需要,而且也忽视了从这种批判性反思中获得的结果”。因此需要从一个超越的角度来对待围困我们的技术社会。
这段文字意在强调:
许多企业正遭遇来自网络罪犯前所未有的攻击。有数据显示,“想哭”病毒仅攻击网络一次,就能造成高达40亿美元的损失。网络罪犯擅长兜售自己成功的战略,他们将所谓的勒索软件当成一种服务,其中涉及一种许可软件,可冻结公司的电脑文件直至对方付款。这些黑客不一定都是自由职业者,事实上,当今绝大多数灾难性的网络攻击都有某些组织的支持。遭受攻击的企业寻求执法人员帮助存在风险,因为不但企业费时费钱,而且会增加将敏感信息公之于众的风险。因此, 。
填入划横线部分最恰当的一项是:
小时候熟记的古诗文,长大后也很难忘记,即使长时间不用,但只要一提起,与之相关的记忆便会不由自主地流露出来。这种扎根在脑海深处的诗词印象,是浸透在血液之中的古文积淀,这就是“童子功”的厉害之处。因此,我们要从小诵读古诗文,让中华传统文化内化于心。古人云,“ ”。想要练就古诗文的“童子功”,必须要多读多记,才会烂熟于心、出口成章。若是腹内草莽,必然不可能口吐莲花。诗词大会舞台上,选手们精彩表现的背后,又何尝不是他们从小的阅读背诵和长年的储存积累。
填入划横线部分最恰当的一项是:
一线城市的高房价以及90后年轻人对生活品质的追求,催生了租赁公寓的兴起。租赁公寓迎合了年轻人的消费观念,租房由过去的不得已转变成享受生活的一种方式。据调查,虽然拥有自己的住房仍是90后的刚性需求,但他们当中只有
愿意为了买房而降低生活质量;另有
的90后不愿意买房,因为房贷过于沉重会降低生活质量。由此观之,这些更看重个人价值的90后,可能成为“不买房一代”。
这段文字意在强调:
黑洞是爱因斯坦广义相对论最不祥的预言:过多物质或能量集中在一处,终将导致空间坍塌,像魔术师的外套一样吞进万物,万事万物皆逃不脱。直到40年前霍金博士宣称颠覆了黑洞——或者可能是彻底推翻了。他的方程式表明:黑洞不会永存。一段时间之后,它们会“泄掉”,然后爆炸成辐射和微粒。但是,有一个障碍:按照霍金的估算,黑洞崩塌时散出的辐射是随机的,落入其中的万事万物的“信息”大部分将被抹掉。这违反了现代物理学的一条原则:时间是可以扭转的,黑洞里发生过的事情可以重建。
这段文字的主旨是:
一条笔直的林荫道两旁种植着梧桐树,同侧道路每两棵梧桐树间距50米。林某每天早上七点半穿过林荫道步行去上班,工作地点恰好在林荫道尽头。经测试,他每分钟步行70步,每步大约50厘米,每天早上八点准时到达工作地点。那么,这条林荫道两旁栽种的梧桐树共有:
某社团组织周末自驾游,集合后发现小王和小李未到。由于每辆小车限坐5人,按照现有车辆恰有1人坐不上车。为难之际,小王和小李分别开车赶到,于是所有人都坐上车,且每辆车人数均相同。那么,参加本次自驾游的小车数为:
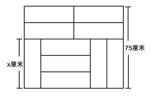
装修工人小郑用相同的长方形瓷砖装饰正方形墙面,每10块瓷砖组成一个如右图所示的图案。小郑用这个图案恰好铺满该墙面,那么,他最少用了多少块瓷砖?

小庄要制作一个工业模具。他在一个边长4厘米的正方体上表面正中心位置向下挖掉一个直径2厘米、高2厘米的圆柱体,接着再向下挖掉一个直径1厘米、高1厘米的小圆柱体(如右图所示)。那么,该模具的表面积约为多少平方厘米?

某银行推出3年期和5年期的两种理财产品A和B。小王分别购买这两种产品各1万元,结果发现,按单利计算(即利息不产生收益),B产品平均年收益率比A产品多2个百分点,期满后,B产品总收益是A产品的2.5倍。那么,小王各花1万元购买A、B两种产品的平均年收益分别是:
某水渠长100米,截面为等腰梯形,其中渠面宽2米,渠底宽1米,渠深2米。因突降暴雨,水深由1米涨至1.8米。则水渠水量增加了:
某试验室通过测评Ⅰ和Ⅱ来核定产品的等级:两项测评都不合格的为次品,仅一项测评合格的为中品,两项测评都合格的为优品。某批产品只有测评Ⅰ合格的产品数是优品数的2倍,测评Ⅰ合格和测评Ⅱ合格的产品数之比为
。若该批产品次品率为
,则该批产品的优品率为:




甲、乙、丙三所学校的学生被安排在周一至周五参观某革命纪念馆。纪念馆每天最多只能安排一所学校,其中甲学校连续参观两天,其余学校均只参观一天,那么共有多少种安排方法?
一直升机在海上救援行动中搜索到遇险者方位后通知快艇,快艇立即朝遇险者直线驶去。此时,直升机距离海平面的垂直高度200米,从机上看,遇险者在正南方向,俯角(朝下看时视线与水平面的夹角)为
,快艇在正东方向,俯角为
。若忽略当时风向、潮流等其它因素,且假定遇险者位置不变,则快艇以60千米/小时的速度匀速前进需要多长时间才能到达遇险者的位置?
某苗木公司准备出售一批苗木,如果每株以4元出售,可卖出20万株,若苗木单价每提高0.4元,就会少卖10000株。问在最佳定价的情况下,该公司最大收入是多少万元?
母亲年龄是唐氏综合征筛查所考虑的风险因素之一。一般认为,母亲年龄越大,宝宝出现遗传异常的风险就越高。当卵子里有一条多余的21号染色体时,胎儿就会出现唐氏综合征。随着女性年龄的增长,出现此类异常的风险也随之升高。最近,一些专家开始对这种筛查方法提出质疑,认为遗传异常并不仅仅只是女方年龄的问题。
以下哪项如果为真,最能支持上述专家质疑?
我们身体的生物钟系统会受到许多因素的影响,其中之一就是光照。研究表明,光照可以有效地欺骗大脑进入“白昼模式”,哪怕当时人的眼睛是闭着的也没关系。研究人员发现可以用光照疗法来帮助我们调整时差,包括持续光照和不同间隔的闪光,而每10秒一次持续仅2毫秒的闪光最有效。研究还发现,在睡眠时经历过“闪光处理”的人出现困意的周期会延后两个小时。
以下哪项如果是真,最能支持上述观点?
月球潮汐力与地球上的地震、海啸、火山爆发等自然灾害存在明显相关性的说法是可疑的,因为每年自然灾害很多,而“超级月亮”每14个月才一次,即便考虑月球经过近地点,每个月也只有一次。部分学者会找出一些和“超级月亮”出现时间相隔不远的灾害来论证,这显然缺乏证据支撑。也忽略了大量事例,比如月球在远地点前后发生的灾害。基于大量关于地震和月球关系数据的研究表明,地震发生频率和月球经过近地点没有统计上的相关性,因此说月球潮汐力会引发地震显然缺乏可靠证据。
由此可以推出:
我国在西南地区进行的页岩气勘探获得重大成果,估算天然气资源量达千亿立方米,这是我国首次在四川盆地以外的南方复杂构造区取得页岩气勘探的重大突破。有专家称该地有望成为新的工业气田,可以满足上千万居民的生活和工农业发展的用气需求,促进经济发展。
该专家观点成立的假设前提是:
研究人员在普遍使用的功能性磁共振成像技术(fMRI)专用软件中发现了算法错误。他们采集499名健康的人处于静息状态时的检查结果,发现其统计方法还需用真实呈现的病例加以验证。这意味着软件有时会错得离谱,就算大脑处于静止状态时也会显示有活动——软件显示出的活动是软件算法的产物,而非被研究大脑真的处于活跃状态。
以下哪项如果为真,最能支持上述结论?
以上
经fMRI专用软件获得的结果会进行验证性试验并进一步确认( )之于 风油精 相当于 碳酸 之于( )
从所给的四个选项中,选择最合适的一个填入问号处,使之呈现一定的规律性:

从所给的四个选项中,选择最合适的一个填入问号处,使下图中的立体图形①、②、③和④可组成一个完整的长方体:

下列哪个选项中的图形能够折叠成完整封闭的立体几何结构:

从正方体中裁出如下图所示六个不同的三角形,将其分为两类,使每一类图形都有各自的共同特征或规律,分类正确的一项是:

理性预期指的是,针对某个经济现象进行预期的时候,如果人们是理性的,那么他们就会最大限度地充分利用所得到的信息来作出行动而不会犯系统性的错误。
根据以上定义,下列属于理性预期的是:
二维码是用某种特定的几何图形按一定规律,在平面分布的黑白相间的图形记录数据符号信息。在代码编制上利用“0”“1”比特流的概念,用若干与二进制相对应的几何形体来表示文字数值信息,通过图像输入设备或光电扫描设备自动识读,以实现信息自动处理。一个二维码所能表示的比特数是固定的,它包含的信息越多,则冗余度就越小;反之,冗余度就越大。
根据上述定义,下列选项不符合二维码内涵的是:
绿色设计是指在整个产品周期内,着重考虑产品的环境属性,如可拆卸性、可回收性、可维护性、可重复利用性等,并将其作为设计目标,在满足环境保护条件的同时,保证产品的质量达到最优状态。
根据上述定义,下列选项符合绿色设计理念的是:
在企业活动中,库存有多种类型。装运库存是指在价值链末端工厂的库房里,那些已经准备好可以随时出货的产品。在途库存又称中转库存,指尚未到达目的地,正处于运输状态或等待运输状态而储备在运输工具中的库存。
根据上述定义,下列选项属于在途库存的是:
刺激泛化是指条件作用的形成使有机体习得了对某一刺激做出特定反应的行为,因此也就可能对类似的刺激做出同样的行为反应。刺激分化是通过选择性强化和消退使有机体学会对条件刺激和与条件刺激相类似的刺激做出不同的行为反应。
根据上述定义,下列说法不正确的是:
地震震级是通过仪器给出地震大小的一种量度,是划分震源放出能量大小的等级,地震所释放的能量越大,地震震级也越大,每一次地震只有一个震级。地震烈度表示地震对地表及工程建筑物影响的强弱程度,是在没有仪器记录的情况下,凭地震时人们的感觉或地震发生后器物反应的程度、工程建筑物的破坏程度、地表的变化状况而定的一种宏观尺度。
根据上述定义,下列说法正确的是:
水体游泳是人们前往水体及周边区域以寻求愉悦为主要目的的一种具有社会、休闲和消费属性的短期经历,目前已逐渐成为人们休闲时尚与区域旅游开发的重要载体。水体旅游资源是指水域(水体)及相关联的岸地、岛屿、林草、建筑等能对人产生吸引力的自然景观和人文景观。
根据上述定义,下列选项不属于水体旅游资源的是:
精准医疗是指以个体化医疗为基础,通过基因组、蛋白质组等技术,对大样本人群与特定疾病类型进行生物标记物的分析与鉴定、验证与应用,从而精确寻找到疾病的原因和治疗的靶点,最终实现对疾病和特定患者进行个性化精确治疗。
根据上述定义,下列选项不属于精准医疗的是:
在决断之前,每个事物的价值在决策者心中大致相近,则难于决断其优劣;但在作出选择之后,决策者对这些事物的态度评价就发生了改变。这种现象叫作决断后效应。
根据上述定义,下列现象属于决断后效应的是:
情感广告是诉诸于消费者的情绪或情感反应,传达商品带给他们的附加值或情绪满足的一种广告策略。这种情绪在消费者心目中的价值可能远远超出商品本身,从而使消费者形成积极的品牌态度。
根据上述定义,下列广告语不属于情感广告的是:
井底蛙:三脚猫:智慧
演员:公园:演出
火药:鞭炮:二踢脚
春秋:寒暑:一年
西子湖:曹娥江
钟表 之于( )相当于( )之于 排字工
题目正在全力以赴征集,将会在征集到后第一时间上传
仪态万方:美丽多姿
骡子:耕畜:犁地
团扇:羽毛扇:舞蹈扇
宇宙加速膨胀是因为物质之间相互排斥,减速膨胀是因为物质之间相互吸引。因此,要在此基础上解释宇宙的加速或减速膨胀,必须要有不同特性的物质在不同的时期占主导地位,从而产生强大的排斥力或吸引力。粒子物理标准模型中的所有粒子都产生吸引的引力,然而星系转动曲线的研究表明,在星系里面还有大量的、看不到的物质,这些物质可以产生非常强大的吸引性引力。
以上论证如果为真,那么星系转动曲线研究结论隐含了下列哪一项前提?
如果央行允许人民币继续贬值,那么市场对于人民币贬值的预期就容易强化。如果市场形成较强的人民币贬值预期,大量的资金就会流出我国。资金流出我国,不仅会强化这种人民币的贬值预期,导致更多的资金流出我国,而且可能会导致我国资产价格全面下跌,继而可能引爆金融市场的区域性风险及系统性风险。这些都是我们不愿意看到且不允许出现的情况。
由此可以推出:
四位球迷在某球赛的晋级赛开始之前对几个队伍的赛况进行预测,他们比较关注其中的两支球队,分别作了如下预测:
方某说:如果甲队不能晋级,那么乙队也不能晋级。
白某说:不管甲队能不能晋级,乙队都不能晋级。
夏某说:乙队能晋级,但甲队不能晋级。
邓某说:我看这几支球队都不能晋级。
比赛结果证明,四位球迷中只有一位的预测是正确的。
根据上述情况,以下哪项一定为真?
场所恐惧症主要表现为对某些特定环境的恐惧,如高处、广场、客观环境和拥挤的公共场所等,常以自发性惊恐发作开始,然后产生预期焦虑和回避行为,进而出现条件化的形成。一些临床研究表明,场所恐惧症患者常伴有惊恐发作。然而,有专家认为最初一次惊恐发作是场所恐惧症起病的必备条件,因而认为场所恐惧症是惊恐发作发展的后果,应归入惊恐障碍这一类别。
以下哪项如果为真,最能质疑上述专家观点?
患者的场所恐惧出现于惊恐发作以前某研究团队让两批测试者分别进入睡眠实验室里睡上一夜。第一批被安排睡得很晚,从而减少总睡眠时间;第二批被安排睡得早,但在睡眠过程中多次被吵醒。第二晚过后,结果就已经显现:第二批测试者的积极情绪受到严重影响。他们的精力水平较低,同情心和友善度等积极情绪指数有所下滑。部分研究者据此认为,被吵醒导致了测试者无法得到足够的慢波睡眠,而慢波睡眠是恢复精力感的关键,但也有研究者对此项研究的可信度提出质疑。
以下哪项如果为真,最能反驳质疑者?
根据以下资料,回答86~90题。
2017年上半年,全国居民人均可支配收入12932元,比上年同期名义增长
,其中,城镇居民人均可支配收入18332元,增长
(以下如无特别说明,均为同比名义增长);农村居民人均可支配收入6562元,增长
。
按收入来源分,2017年上半年,全国居民人均工资性收入7435元,增长
,占全国居民人均可支配收入的比重为
;人均经营净收入2117元,增长
,占全国居民人均可支配收入的比重为
;人均财产净收入1056元,增长
,占全国居民人均可支配收入的比重为
;人均转移净收入2324元,增长
,占全国居民人均可支配收入的比重为
。

2017年上半年,全国居民消费支出主要数据按消费类别分,其指标的增长率超过全国居民人均消费支出水平增长率的有几个?
关于2017年上半年全国居民收入和消费支出主要数据情况,下列说法正确的是:
2017年上半年,人均财产净收入比上年约增加多少元?
2016年上半年,全国居民人均工资性收入占全国居民人均可支配收入的比重约为:




2016年上半年,城镇居民人均可支配收入约为多少万元?
根据以下资料,回答91~95题。
2017年第一季度,某省农林牧渔业增加值361.78亿元,比上年同期增长
,高于上年同期0.2个百分点。具体情况如下:
该省种植业增加值119.21亿元,比上年同期增长
。其中蔬菜种植面积358.80万亩,比上年同期增加18.23万亩,蔬菜产量471.42万吨,增长
;茶叶种植面积679.53万亩,比上年同期增加19.79万亩,茶叶产量2.30万吨,增长
。
该省林业增加值34.84亿元,比上年同期增长
。
该省畜牧业增加值176.64亿元,比上年同期增长
,增速比上年同期加快2.1个百分点。其中生猪存栏增速由上年同期的下降
转为增长
,出栏增速由上年同期的下降
转为增长
;猪牛羊禽肉产量67.80万吨,比上年同期增长
;禽蛋产量5.33万吨,增长
;牛奶产量1.40万吨,增长
。
该省渔业增加值9.22亿元,比上年同期增长
。全省水产品产量7.68万吨,比上年同期增长
,其中,养殖水产品产量7.3万吨,增长
。
该省农林牧渔服务业增加值21.87亿元,比上年同期增长
。
2015年第一季度,该省农林牧渔业增加值与下列哪一项最为接近?
2016年第一季度,该省平均每亩蔬菜种植地产出蔬菜多少吨?
2017年第一季度,该省生猪出栏增速比上年同期:




2017年第一季度,该省占农林牧渔业增加值比重超过三成的包括:
能够从上述资料中推出或计算出的是:
,则2017年该省林业增加值将超过150亿元根据以下材料,回答96~100题。
2016年,我国全年完成邮电业务收入总量43344亿元,比上年增长
。其中,邮政业务收入7397亿元,增长
;电信业务收入35947亿元,增长
。邮政业全年完成邮政函件业务36.2亿件,包裹业务0.3亿件,快递业务量312.8亿件;快递业务收入3974亿元。电信业全年新增移动电话交换机容量7318万户,达到218384万户。2016年末全国电话用户总数152856万户(电话包括固定电话和移动电话两种),其中移动电话用户132193万户。移动电话普及率上升至96.2部/百人。固定互联网宽带接入用户29721万户,比上年增加3774万户,其中固定互联网光纤宽带接入用户22766万户,比上年增加7941万户;移动宽带用户94075万户,增加23464万户。移动互联网接入流量93.6亿G,比上年增长
。互联网上网人数7.31亿人,增加4299万人,其中手机上网人数6.95亿人,增加7550万人。互联网普及率达到
,其中农村地区互联网普及率达到
。软件和信息技术服务业完成软件业务收入48511亿元。比上年增长
。

2013~2016年期间,我国移动宽带用户数同比增长最快的年份是:
2015年我国电信业务收入比邮政业务收入多:
2012~2016年期间,我国固定互联网宽带接入用户的平均数是:
2016年末,全国固定电话用户占电话用户总数的比重约为:




关于我国邮电业务情况的说明,下列说法正确的是:
根据以下资料,回答以下问题。

注:
1.农村金融机构包括农村商业银行、农村合作银行、农村信用社和新型农村金融机构。
2.其他类金融机构包括政策性银行及国家开发银行、民营银行、外资银行、非银行金融机构、资产管理公司和邮政储蓄银行。
3.净资产额等于总资产额减去总负债额。
2017年5月,股份制商业银行总资产占银行业金融机构的比重与上年相比约:
2016年5月,银行业金融机构总资产金额为多少万亿元?
在2017年5月我国银行业金融机构资产负债表中,下列哪一项的总资产同比增长额最高?
根据所给资料,下列表述正确的是:
农村金融机构净资产额
股份制商业银行净资产额
股份制商业银行净资产额
其他类金融机构净资产额2017年5月我国股份制商业银行净资产额约是城市商业银行净资产额的多少倍?
下列可以作为我国古代天子祭祀礼器的有:
①鼎 ②爵 ③篡 ④璧 ⑤璜 ⑥璋
在元代,与埃及亚历山大港并称“世界第一大港”的是:
下列古诗中涉及的历史事件,按先后顺序排列正确的是:
①千寻铁锁沉江底,一片降幡出石头
②剑外忽传收蓟北,初闻涕泪满衣裳
③千载琵琶作胡语,分明怨恨曲中论
④江东子弟多才俊,卷土重来未可知
下列关于我国城镇职工基本医疗保险(简称职工医保)的说法正确的是:
古代许多人既有“名”又有“字”,表字和本名的意义有联系。下列古代名人的表字和本名意义相近、互为辅助的是:
中国共产党第十九次全国代表大会的主题是: ,高举中国特色社会主义伟大旗帜,决胜全面建成小康社会,夺取新时代中国特色社会主义伟大胜利,为实现中华民族伟大复兴的中国梦不懈奋斗。
填入划横线部分最恰当的一项是:
下列关于我国金融常识的说法正确的是:
下列文学作品没有使用方言的是:
下列教育家与其名言对应不正确的是:
下列著作与作者对应不正确的是:
下列哪一成语的典故不是来自真实历史事件:
下列我国古代绘画理论名句所表达的美学理念与其他三项不同的是:
下列关于生活医学常识的说法错误的是:


某患者深夜因剧烈的关节疼痛而惊醒,触摸其手足多个关节,发现有黄白色结晶体隆起。造成这种症状的代谢改变最有可能是:
面包制作过程中使用酵母主要是利用其哪一种特性:
下列四个节气所表示的含义错误的是:
下列现象的物理解释错误的是:
通常情况下,使用高压锅可以大大缩短食物的烹煮时间,节约能源。下列对其所用物理原理的解释正确的是:
下列选项不属于航空航天中货运飞船主要任务的是:
“21世纪金属”具有较高的强度、良好的抗氧化性和优异的耐腐蚀性,对人体无毒且无不良反应,被称为“亲生物金属”,可作为人造骨材料。下列关于“21世纪金属”的说法正确的是:
